Zotti&Zotti

Bem-vindo ao nosso site

Carregando...

Residencial Santos Dumont

Um projeto que combina conforto e sofisticação em um dos melhores endereços da cidade

Residencial Santos Dumont

Concluído
Residencial Santos Dumont

Características

  • 2 dormitórios
  • Área a partir de 66 m²
  • Quarto com sacada integrada
  • Vagas demarcadas
  • Quintal privativo com área de serviço
  • Acabamento nas áreas frias
  • Apenas 4 sobrados
  • Um banheiro + um lavabo
  • Porteiro inteligente
Endereço

R. Santos Dumont, 211 - Vila Andeyara
Ferraz de Vasconcelos - SP, 08544-600

Ficha Técnica

Incorporação e Construção

Zotti & Zotti Empreendimentos Imobiliários

Projeto Arquitetura

Zotti & Zotti Empreendimentos

Área do terreno

320,00 m²

Área Construída

266,72 m²

Estrutura do Edifício

1 pavimento
4 unidades

Total de Unidades

4

Vagas de Garagem

4

Área da unidade

A partir de 60 m²

Galeria de Fotos

Residencial Santos Dumont - Vista Externa
Residencial Santos Dumont - Fachada
Residencial Santos Dumont - Área Comum
Residencial Santos Dumont - Detalhes
Residencial Santos Dumont - Vista Panorâmica
Residencial Santos Dumont - Área de Lazer
Residencial Santos Dumont - Entrada
Residencial Santos Dumont - Vista Interna
Residencial Santos Dumont - Detalhes Arquitetônicos
Residencial Santos Dumont - Vista Noturna
Residencial Santos Dumont - Áreas Verdes
Residencial Santos Dumont - Finalização
Residencial Santos Dumont - Vista Alternativa

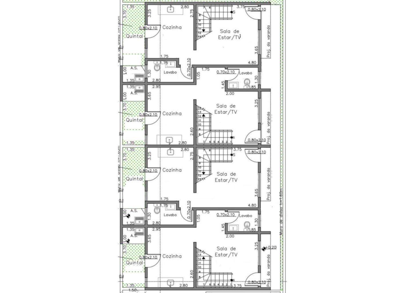
Plantas dos Sobrados

Pavimento Inferior Pavimento Inferior
Pavimento Superior Pavimento Superior
Casa 1 e 3 - Pavimento Inferior Casa 1 e 3 - Pavimento Inferior
Casa 2 e 4 - Pavimento Inferior Casa 2 e 4 - Pavimento Inferior
Casa 1 e 3 - Pavimento Superior Casa 1 e 3 - Pavimento Superior